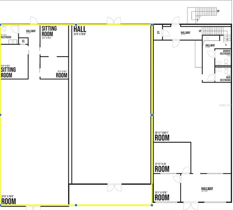
Prime commercial opportunity located at 1001 Manatee Avenue East in old downtown Bradenton, Florida. The property offers approximately 52 feet of frontage along Manatee Avenue East with excellent visibility and an AADT of approximately 22,500 vehicles per day. The site includes approximately 21 shared on-site parking spaces (with the property at 1007 Manatee Avenue) and is conveniently located minutes from Downtown Bradenton, US-41, and nearby residential neighborhoods. The property is zoned BR (Business/Residential) and T4-O (Transect 4 - Open) which support neighborhood-scale commercial, office, residential, and mixed-use development consistent with the City of Bradenton Comprehensive Plan. Uses and development standards are subject to City review and approval. Located in central Manatee County and near new multifamily development and just south of the Bradenton Riverwalk, this property presents a strong opportunity for owner-users or investors seeking a well-positioned commercial asset. The property features an updated one-story building totaling approximately 2,100 square feet of open space. The space is well suited for a boutique, studio, shared workspace, or a variety of commercial or event-related uses. The interior includes multiple private rooms and one restroom. Located east of the building is a covered tiki hut measuring approximately 30' x 70' (±2,100 square feet), providing a courtyard-style event area. The property has a proven history of use for weddings, meetings, and private celebrations, with seating capacity for approximately 80 guests.The property at 1007 Manatee Avenue East is also available for sale and includes a s 2 story office building. Owner financing maybe available. There is also a food truck that is available for $40,000.
Listed by Jon Franz of INTEGRITY REAL ESTATE ADVISORS (850-445-7833)

Listing Tools

Property Details of 1001 Manatee Avenue E

Property Details

Exterior Features

Community

Map Location

Listings courtesy of StellarMLS as distributed by MLS GRID. Based on information submitted to the MLS GRID as of March 6, 2026 10:04 PM EST. All data is obtained from various sources and may not have been verified by broker or MLS GRID. Supplied Open House Information is subject to change without notice. All information should be independently reviewed and verified for accuracy. Properties may or may not be listed by the office/agent presenting the information. IDX information is provided exclusively for consumers’ personal noncommercial use and may not be used for any purpose other than to identify prospective properties consumers may be interested in purchasing. The data is deemed reliable but is not guaranteed by MLS GRID. The use of the MLS GRID Data may be subject to an end user license agreement.

Hi there! How can we help you?

Contact us using the form below or give us a call.

Send Us A Message:

I agree to receive marketing and customer service calls and text messages from Abby & Scott Basci . To opt out, you can reply 'stop' at any time or click the unsubscribe link in the emails. Consent is not a condition of purchase. Msg/data rates may apply. Msg frequency varies. Privacy Policy.

Do not fill in this field:

This site is protected by reCAPTCHA and the Google Privacy Policy and Terms of Service apply.

Hi there! How can we help you?

Contact us using the form below or give us a call.

Send Us A Message:

Do not fill in this field:

This site is protected by reCAPTCHA and the Google Privacy Policy and Terms of Service apply.

Hi there! How can we help you?

Contact us using the form below or give us a call.

Send Us A Message:

Do not fill in this field:

This site is protected by reCAPTCHA and the Google Privacy Policy and Terms of Service apply.

Do not fill in this field:

This site is protected by reCAPTCHA and the Google Privacy Policy and Terms of Service apply.

Do not fill in this field:

This site is protected by reCAPTCHA and the Google Privacy Policy and Terms of Service apply.

Do not fill in this field:

This site is protected by reCAPTCHA and the Google Privacy Policy and Terms of Service apply.

$

Do not fill in this field:

This site is protected by reCAPTCHA and the Google Privacy Policy and Terms of Service apply.